Simply breathtaking – the Corner Sky Villa Penthouse at Aqua Bay offers the most spectacular views in the Cayman Islands. As the newest Seven Mile Beach real estate opportunity from Butler Group, one of Grand Cayman’s premier builders of luxury resort condominiums, this is your opportunity to live the dream on Seven Mile Beach with only four of these coveted villas being created.
The interior design has been developed by Butler Group’s award-winning partner company, Design Studio Interiors. All Sky Villa Penthouses feature expansive floor to ceiling glass walls, high ceilings, superior tile and flooring options, top quality plumbing and appliance selections as well as bespoke millwork design for the kitchens, bathrooms, and amenity areas.
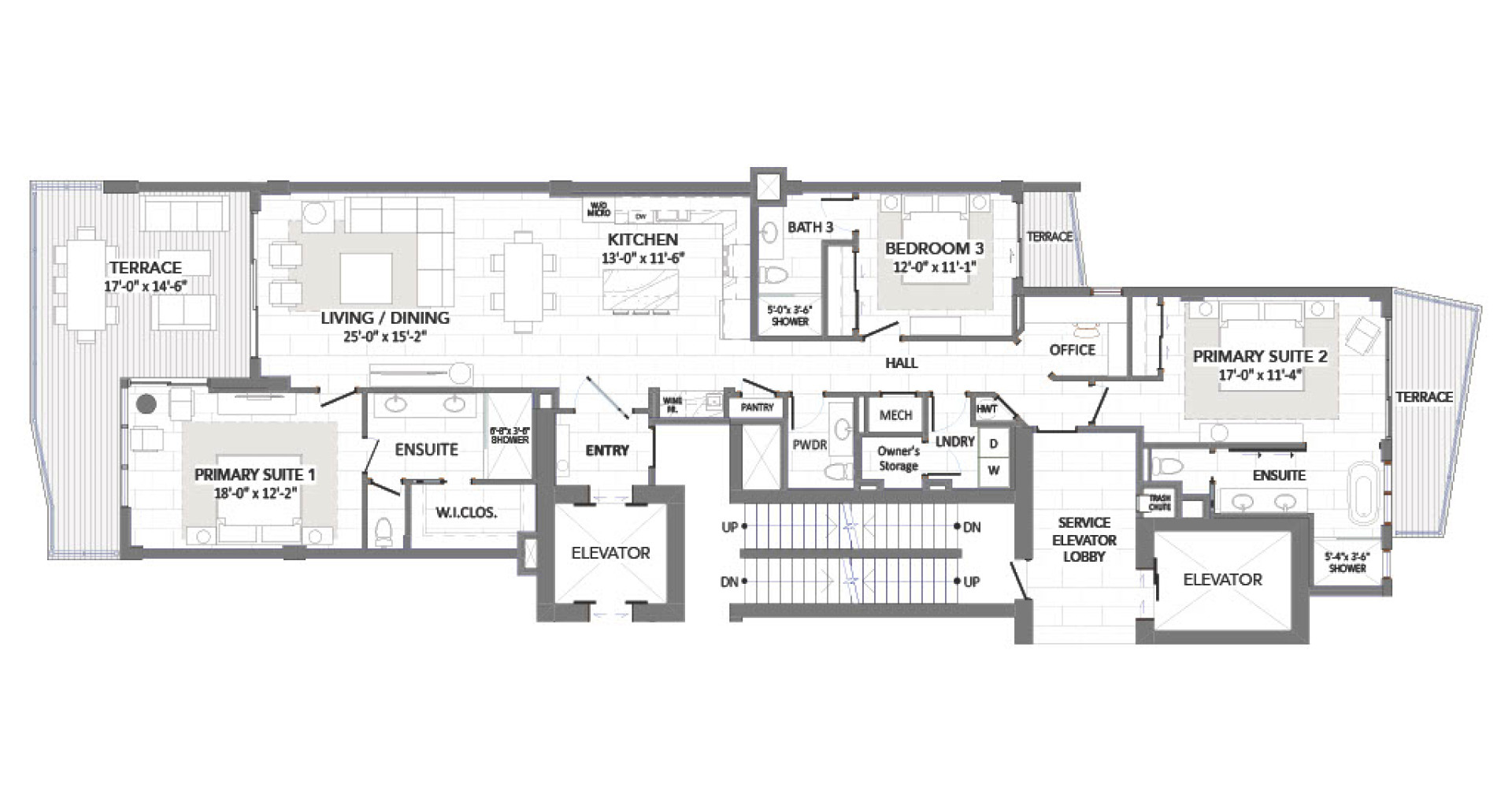
At an expansive 5,208 sq. ft. this Sky Villa Penthouse features 3 bedrooms and 4.5 bathrooms over two stories. The large first level touts 2,470 sq. ft. with an open concept living/dining area and kitchen with wet bar, 2 Primary Bedrooms Suites each with luxurious spa bathrooms - one with access to a large terrace with stunning views of Seven Mile Beach and the other facing North Sound with a terrace to enjoy incredible sunrises and views to Rum Point and Cayman Kai.
Ascending to the second level, the experience reaches new heights. The Sky Deck boasts a stunning waterfall‑edge heated pool and spa, complemented by a fully equipped outdoor kitchen and bar, perfect for elegant al fresco dining. Thoughtfully designed sun‑lounge areas and a stylish fire‑pit lounge create inviting spaces to relax day or night, all meticulously positioned to frame and amplify the breathtaking vistas of Seven Mile Beach.
Following Butler Group’s forty-four-year reputation for building excellence, Aqua Bay will be engineered and constructed to the highest standards. Elevated over 16 ft. above sea level for privacy and storm protection, this structure will utilize the latest specifications for the building’s essential services, including solar tinted, hurricane rated glazing systems.
Amenities will include boutique hotel style reception, 90 ft. long, waterfall edge pool, extensive pool deck and private beach, two beachfront BBQ areas for al fresco dining, fitness centre, oceanfront lounge and games room, on site manager’s office, undercover parking for each villa, day room facilities for late checkout options and lush tropical landscape design. Aqua Bay will offer a daily rental program which owners can utilize while not in residence, making this building the newest and most luxurious daily rental destination in Grand Cayman.
Sales price does not include any artwork, ornaments or personal effects.
- Breakfast area
- Cable TV
- Dining area
- Dishwasher
- Family Room
- Kitchen area
- Living room
- Microwave
- Pool
- Refrigerator
- Sewer
- Stories: 10
- Utility room
- Washer/Dryer: Yes
West bay Rd., W Bay South, Cayman Islands